Herkömmliche Türen führen beim Öffnen eine Drehbewegung in oder aus einem Raum aus. Wird das nicht gewünscht oder würde die Drehbewegung stören, ist eine Schiebetür die richtige Wahl. Schiebetüren, die parallel zur Wand geschoben werden, benötigen keinen Schwenkbereich. Deshalb werden Schiebetüren insbesondere als Türlösung für barrierefreies Bauen verwendet. Schiebetüren können auch zur Abtrennung von Nischen oder begehbaren Kleiderschränken eingesetzt werden. Sie dienen außerdem als Raumteiler, z.B. zwischen Küche und Esszimmer. Standard ist ein ungefälztes Türblatt aus Holz oder eine Ganzglastür, die über ein Laufwerk (=Laufschiene mit Laufwagen) oberhalb der Tür geführt werden.Zu unterscheiden sind Schiebetüren, die vor der Wand laufen, Schiebetüren, die in der Wand laufen und Schiebetüren mit Schiebetürkästen.
Vor der Wand laufende Schiebetüren

Bei Schiebetüren, die vor der Wand laufen, wird die Laufschiene auf der Wand montiert. Die Laufschienen sind sichtbar. Sie können verkleidet oder nicht verkleidet sein. Diese Variante wird insbesondere beim nachträglichen Einbau einer Schiebetür angewendet.
In der Wand laufende Schiebetüren

Bei Schiebetüren, die in der Wand laufen, wird die Laufschiene zwischen zwei Wänden montiert und ist deshalb nicht zu sehen. Die Tür verschwindet beim Öffnen zwischen den beiden Wänden und benötigt keinen Platz im Raum. Da für diese Einbauvariante eine zweite Wandscheibe vor der Wand gebraucht wird, ist sie im Nachhinein nur mit sehr hohem Aufwand zu realisieren. Sie wird deshalb meist im Neubau eingesetzt.
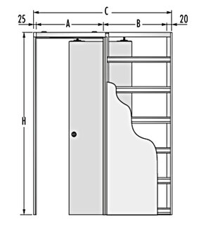
Schiebetüren mit Schiebetürkästen

Bei Schiebetüren mit Schiebetürkästen (Einbaukästen) wird in die Wand ein Metallkasten gebaut, in dem die Schiebetür später verschwindet. Der Kasten und die angrenzende Wand werden mit einer zweiten Wandschale (z.B. aus Gipskartonplatten) verkleidet. Diese Variante kommt sehr häufig bei Renovierungen zum Einsatz, wenn nachträglich eine Schiebetür in der Wand laufend hergestellt werden soll. Es gibt Ausführungen für Trockenbau und für Mauerwerk.
Softstop-System für Schiebetüren

Das Softstop-System wird dafür verwendet, Schiebetüren sanft abzubremsen. Diese Einzugsdämfung verlangsamt die Schiebetür vor dem Ende der Schiebeführung, um die Tür sanft und fast geräuschlos in ihre Endstellung zu führen und bei zweiflügeligen Türen einen Zusammenstoß zu vermeiden. Dabei ist es gleich ob die Türe geöffnet oder geschlossen wird. Auch wenn viel Kraft aufgewendet wurde, kann das System die Schiebetüre abbremsen und ordnungsgemäß in die Endstellung bringen. Somit wird ein Anschlagen am Rahmen oder am Puffer verhindert. Dank Softstop kann die Lebensdauer der Schiebetür deutlich verlängert werden.Lösungen gibt es für Schiebetüren die vor der Wand laufen, genauso wie für in der Wand laufende Schiebetüren mit und ohne Schiebetürkästen. Ob eine Nachrüstung möglich ist, muss im Einzelfall geprüft werden.