
Zargen
Abmessungen & Einbau

Abmessungen & Einbau


Der Blendrahmen besteht aus einem Rahmen, der einseitig auf die Wand montiert wird (Abb. 1). Er…

Bei großen Öffnungen wird oft ein Blockrahmen in der Laibung montiert; man spricht in diesem Fall…

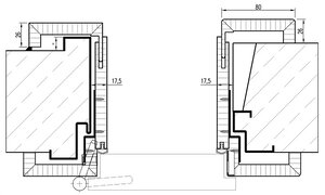
Sollen Wandbekleidungen flächenbündig mit dem Türblatt ausgeführt werden, kommt häufig eine Blockzarge (Abb. 3) zum Einsatz.…

Die Eckzarge wird auf dem Wandeck montiert. Sie kommt zum Beispiel zum Einsatz, wenn die Mauerlaibung…

Die wesentlichen Bauteile einer Holzzarge sind: Futter, Falz-, Zierbekleidung und Dichtungsprofil. Das Futter ist die Verkleidung…

Die Bekleidungen bei Holzzargen können neben eckig und rund auch profiliert ausgeführt werden. Eine Variante ist…

Die Renovierungszarge (auch Ummantelungszarge) dient der Renovierung von Stahlzargen. Ohne die vorhandenen Stahlzargen auszubauen, werden Renovierungszargen…

Die Schattennutzarge hat ihren Namen von zwei Längsvertiefungen, den Schattennuten. Sie sind ein optisches Gestaltungselement der…

Stahlzargen sind im Vergleich zu Holzzargen stabiler. Sie werden insbesondere in stark frequentierten Bereichen eingesetzt. Ihr…

Bei einem wandbündigen System wird dieZargemit der Wand bündig eingebaut. Hier wird ein sogenannter Montageriegel mit der…